Adaptive-A10
Commercial / Multi-Family Housing
November 2025
Spatial Layout
Existing
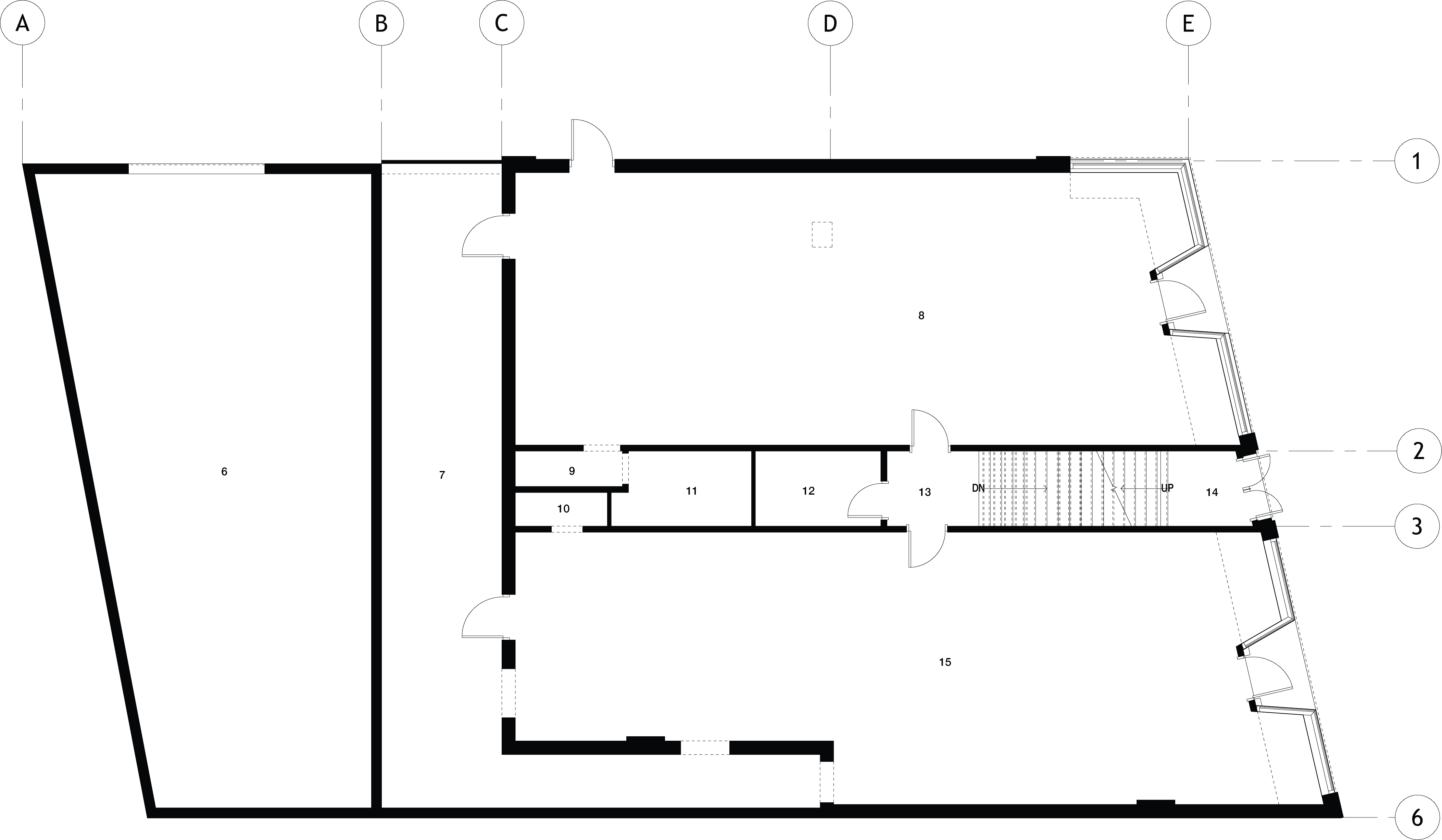
BASEMENT
01 STORAGE / MECHANICAL A
02 SHARED STORAGE
03 ELECTRICAL UTILITIES
04 MECHANICAL / BOILER ROOM
05 STORAGE / MECHANICAL B


GROUND FLOOR / COMMERCIAL
06 RETAIL BACK-OF-HOUSE STORAGE A
07 RETAIL BACK-OF-HOUSE STORAGE B
08 RETAIL SPACE A
09 MAINTENANCE CLOSET
10 ELECTRICAL PANEL ROOM
11 STAFF WC A
12 STAFF WC A
13 BASEMENT ACCESS
14 RESIDENTIAL ENTRY
15 RETAIL SPACE B


UPPER FLOOR / UNIT A
16 BEDROOM A
17 BEDROOM B
18 LIVING AREA A
19 CLOSET
20 LIVING AREA B
21 HALLWAY
22 BATHROOM
23 STORAGE / MECHANICAL
24 WINDOW WELL
25 LAUNDRY ROOM
UPPER FLOOR / UNIT B
26 LAUNDRY
27 ENTRY
28 PANTRY
29 KITCHEN
30 PANTRY
31 KITCHEN
32 HALLWAY
33 STORAGE / MECHANICAL
34 BATHROOM
35 BEDROOM A
36 BEDROOM B
37 CLOSET A
38 LIVING AREA A
39 CLOSET B
40 LIVING AREA B


Elevation Analysis

South Elevation

East Elevation

North Elevation

West Elevation
PROGRAM & SPATIAL HIERARCHY
• Basement: Mechanical, storage, staff access
• Ground Floor: Retail A (Fashion) + Retail B (Coffee) + circulation + back-of-house storage
• Upper Floor: Residential Unit A + Residential Unit B
• Roof: Existing structure preserved; minimal intervention

Retail A: Fashion Space
interior Moodboard
01
Curved Steel Wall & Seating
02
Mirrored Aluminum Volume
03
Linear Hanging System
04
Exposed Edge Minimal Rack
05
Aluminum Bench Table




Retail A: Coffee Space
Interior Moodboard
01
Aluminum Bar & Shelving
02
Aluminum Counter
03
White Gypsum Partions
04
Museum Seating
05
Seating Pod Cluster




HOUSIng unit-a
interior moodboard
01
Reference
02
Reference
03
Reference
04
Reference
05
Reference




HOUSIng unit-B
interior moodboard
01
Reference
02
Reference
03
Reference
04
Reference
05
Reference




Contact
© Edward Sashkov, 2025.